空室待ち 最新状況はお問い合わせください
/
外観
-
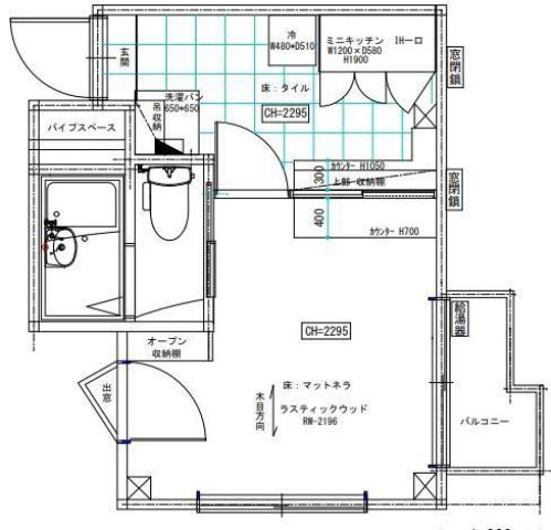
バストイレ別
-
室内洗濯機置場





- 保証金
- -
- 敷引 / 償却
- - / -
- 敷金積み増し
- -
- その他初期費用
- -
- その他月額費用
- 合計0.2万円 ( 内訳:水道代0.2万円 インターネット料無料-円 )
- バルコニー
(テラス)面積 - -
- 構造
- 鉄骨造
- 築年月
- 1988年7月(築37年)
- 種別
- 賃貸マンション
- 保険会社 / 料金
- 有 学生賠償責任保険(一人暮らし特約あり)学生賠償責任保険(一人暮らし特約あり) 8,500円 / 1年
- 保証会社 / 料金
- 必加入 / その他
初回保証料:10.000円 継続保証料:10,000円/年 - その他条件
- 鍵交換代:1万6,500円 室内清掃費用:2万2,000円 水道代:2,000円(月額)
- 設備条件
-
- リノベーション済 / 仲介手数料半額 / 室内洗濯機置場 / フローリング / バルコニー / 都市ガス / 公営水道 / 公共下水 / 電気有 / 駐輪場 / IHクッキングヒーター / コンロ1口 / バス・トイレ別 / ユニットバス / エアコン / 光ファイバー
- 設備(フリースペース)
-
-
コンロ備付(一部ガス持込)
- 契約期間
- 4年
- 賃貸区分
- 一般
- 更新料
- 0万円
- 更新事務手数料
- 1.1万円
- 総戸数
- 9戸
- 特優賃
- -
- 取引態様
- 仲介
- 物件番号
- 86149224
- 備考
-
コンビニエンスストア
デイリーヤマザキ 鞍馬口店
226m(3分)
-
スーパー
鞍楽ハウディ
286m(4分)
-
大学
同志社大学 北門(今出川キャンパス)
550m(7分)
-
大学
同志社女子大学 正門(今出川キャンパス)
1253m(16分)
物件の特徴
セールスポイント
京都市営烏丸線鞍馬口駅にも近くて便利。便利なスーパー「鞍楽ハウディ」やコンビニも近く、生活に便利な場所です。大学までの距離も近く、同志社生に人気のマンションです!一部、室内大幅リノベーション実施、独立洗面台のお部屋もございます。
パノラマ画像
基本情報
設備条件
その他
周辺施設
サンシャイン烏丸鞍馬口
4.7万円
1K(17.80㎡)